La résidence Arkeo est située dans le joli village de Schoenfels, dans la vallée de la Mamer, entre Kopstal et Mersch et fait partie de la Vallée des sept châteaux.
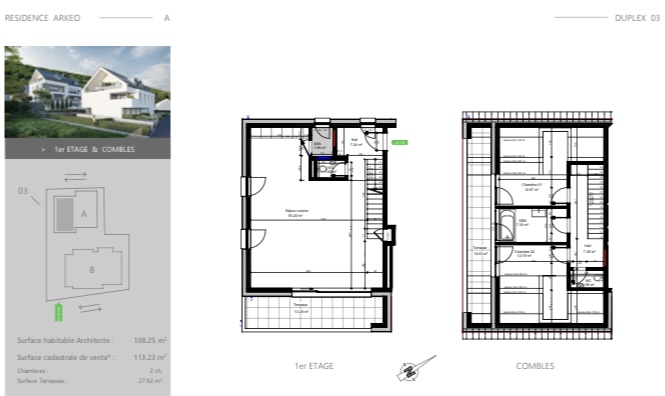
Ce beau duplex comprend au premier étage un grand séjour/cuisine de 55,20 m2 donnant accès sur une première terrasse de 13,29m2. Sous combles se trouvent deux belles chambres donnant accès à une grande terrasse de 14,63m2.
Prix de Vente HTVA
- Classe de performance énergétique A
- Honoraires à charge vendeur€
- Nature du bien Duplex
- Année de construction 2024
- Etage 1
- Nombre d'étages 2
- Accès handicapés
- Accueil
- Alarme
- Animaux acceptés
- Antenne satellite
- Ascenseur
- Balcon
- Buanderie
- Bureau
- Cave
- Cave à vin
- Cheminée
- Climatisation
- Cour
- Cuisine équipée
- Cuisine indépendante
- Digicode
- Grenier
- Hall
- Jardin
- Meublé
- Parking collectif
- Parking ouvert
- Parking souterrain
- Parlophone
- Piscine
- Placards
- Porte blindée
- Rénové
- Salle à manger
- Salle de bain
- Salle de douche
- Salon
- Séjour
- Séjour double
- Terrasse
- Veranda
- Vidéophone
- Volets électriques
- Volets roulants
- Wc séparés
rue du Château – Mersch








